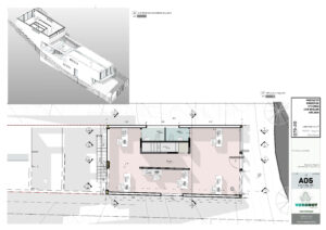
Contenedores

Vivienda unifamiliar aislada, diseñada con contenedores marítimos reciclados.
Begues (Barcelona)

2020